MALUS LONG
Rekreační chata Malus vhodná na malé pozemky s nedostatkem prostoru, nabízí dostatek místa pro odpočinek dvou osob. Chata je ideální do zahrádkářské kolonie, nebo jako dodatečné ubytovací prostory. Jednoduchá dispozice zajišťuje maximální využití zastavěné plochy a snadné přizpůsobení interiéru podle vlastních potřeb. Chatu Malus je možné také realizovat v zrcadlově převráceném provedení.
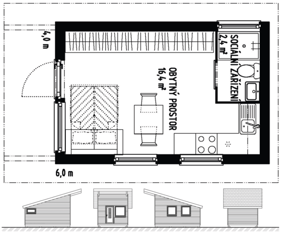
| Dispozice | 1 + kk | |
| components.czechpan.dum.zastavena_plocha | 24 | m2 |
| components.czechpan.dum.uzitna_plocha | 19 | m2 |
| components.czechpan.dum.vyska_hrebene | 4,0 | m |
| components.czechpan.dum.sklon_strechy | 17 | ° |
| Orientace | JZ, Z, SZ | |
Ke stažení
Ke stažení
-
prospekt - MALUS LONG
[278,74 kB]
1. Hrubá stavba od 568 000,- Kč vč. DPH
- Dodávka včetně montáže
- Konstrukce podlahy z panelů K-KONTROL®
- Obvodové stěny z panelů K-KONTROL®
- Konstrukční dřevo
- Spojovací a kotevní materiál
- Konstrukce střechy z panelů K-KONTROL®
- Montážní dokumentace
2. Venkovní kompletace hrubé stavby
od 367 000,- Kč vč. DPH
- Dodávka včetně montáže
- Střešní krytina z asfaltových modifikovaných pásů Elastek vč. klempířských prvků
- Plastová okna a vchodové dveře s izolačním dvojsklem
- Dřevěný fasádní obklad
1+2 Uzavřená hrubá stavba celkem
od 935 000,- Kč vč. DPH
Uvedená cena nezahrnuje:
- Projektovou dokumentaci
- Základové konstrukce, přípojky inženýrských sítí (voda, kanalizace, elektřina)
- Vnitřní kompletace objektu (vnitřní nenosné SDK příčky, vnitřní instalace, vnitřní povrchy, skladby podlah a stropů, vybavení koupelny ani kuchyně, terasu, vnitřní dveře)
- VRN (vedlejší rozpočtové náklady – umístění stavby)





