ALNUS F
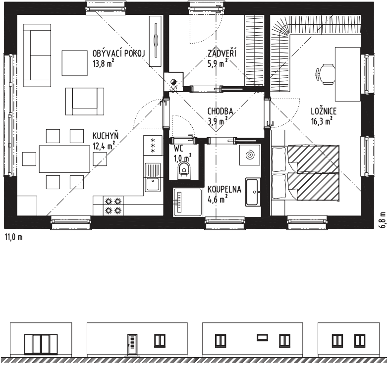
Alnus je jednopodlažní rodinný dům navržen pro pohodlný život dvou osob bez ohledu na věk. Ačkoliv je dům navržen pro trvalé bydlení pouze dvou osob, v prostorném obýváku s kuchyní je možné přivítat i větší návštěvy. Přitom však každý nalezne dostatek soukromí a klidu ve své ložnici či pracovně. Při návrhu domu byl kladen velký důraz na minimalizaci investičních a současně i provozních nákladů. Díky jednoduchému řešení nosných konstrukcí lze interiér domu velmi dobře adaptovat dle individuálních požadavků. Dům je možné realizovat v zrcadlově převráceném provedení.
| Dispozice | 2 + kk | |
| components.czechpan.dum.zastavena_plocha | 69 | m2 |
| components.czechpan.dum.uzitna_plocha | 58 | m2 |
| components.czechpan.dum.vyska_hrebene | 5,2 | m |
| components.czechpan.dum.sklon_strechy | 31 | ° |
| Orientace | V, S, Z | |
Ke stažení
Ke stažení
-
prospekt - ALNUS F
[636,67 kB]
1. Hrubá stavba od 645 000,- Kč vč. DPH
- Dodávka včetně montáže
- Obvodové stěny z panelů K-KONTROL®
- Vnitřní nosné a ztužující příčky z panelů K-KONTROL®
- Konstrukční dřevo
- Spojovací a kotevní materiál
- Konstrukce střechy z I-OSB nosníků
- Montážní dokumentace
2. Venkovní kompletace hrubé stavby
od 756 000,- Kč vč. DPH
- Dodávka včetně montáže
- Kompletní střešní krytina z PVC folie a klempířských prvků
- Plastová okna a vchodové dveře s izolačním trojsklem
- Kontaktní zateplovací systém s polystyrenem tl. 140 mm a silikonovou omítkou
- Zateplení soklu základové desky perimetrem tl. 80 mm a akrylátovou omítkou
1+2 Uzavřená hrubá stavba celkem
od 1 401 000,- Kč vč. DPH
Uvedená cena nezahrnuje:
- Projektovou dokumentaci
- Komínové těleso
- Základovou desku, přípojky inženýrských sítí (voda, kanalizace, elektřina)
- Vnitřní kompletace rodinného domu (vnitřní nenosné SDK příčky, vnitřní instalace, vnitřní povrchy, skladby podlah a stropů, vybavení koupelny ani kuchyně, terasu, vnitřní dveře)
- VRN (vedlejší rozpočtové náklady – umístění stavby)





