FOREST GARDEN FAMILY
Rekreační chata Forest Garden Family nabízí výjimečný prostor pro odpočinek a relaxaci čtyř osob. Celoprosklený štít poskytuje dokonalé propojení s venkovním prostorem a zastřešená terasa se závětřím umožňuje venkovní posezení i v deštivých dnech. Díky střeše bez přesahů působí chata moderním designem. Chatu Forest Garden Family je možné také realizovat v zrcadlově převráceném provedení.
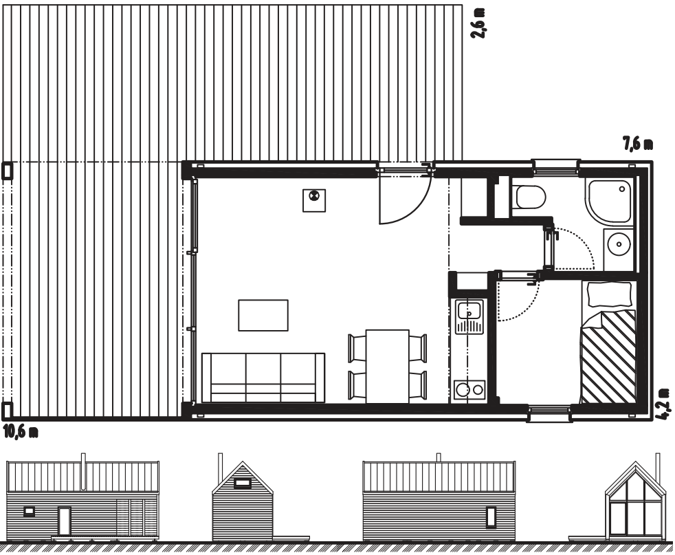
| Dispozice | 3 + kk | |
| components.czechpan.dum.zastavena_plocha | 32 | m2 |
| components.czechpan.dum.uzitna_plocha | 37 | m2 |
| components.czechpan.dum.vyska_hrebene | 5,5 | m |
| components.czechpan.dum.sklon_strechy | 45 | ° |
| Orientace | JZ, Z, SZ | |
Ke stažení
Ke stažení
-
prospekt - FOREST GARDEN FAMILY
[474,41 kB]
1. Hrubá stavba od 988 000,- Kč vč. DPH
- Dodávka včetně montáže
- Konstrukce podlahy z panelů K-KONTROL®
- Obvodové stěny z panelů K-KONTROL®
- Nosné pohledové rámy z lepených hranolů
- Vnitřní nosné a ztužující příčky z panelů K-KONTROL®
- Konstrukční dřevo
- Spojovací a kotevní materiál
- Konstrukce střechy z panelů K-KONTROL®
- Montážní dokumentace
2. Venkovní kompletace hrubé stavby
od 617 000,- Kč vč. DPH
- Dodávka včetně montáže
- Falcovaná střešní krytina PREFALZ® vč. klempířských prvků
- Okna a dveře z hliníkových profilů ALUPROF MB-70 s bezpečnostním izolačním dvojsklem
1+2 Uzavřená hrubá stavba celkem
od 1 605 000,- Kč vč. DPH
Uvedená cena nezahrnuje:
- Projektovou dokumentaci
- Základové konstrukce, přípojky inženýrských sítí (voda, kanalizace, elektřina)
- Dřevěný obklad fasády
- Vnitřní kompletace objektu (vnitřní nenosné SDK příčky, vnitřní instalace, vnitřní povrchy, skladby podlah a stropů, vybavení koupelny ani kuchyně, terasu, vnitřní dveře)
- VRN (vedlejší rozpočtové náklady – umístění stavby)





