Alnus
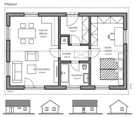
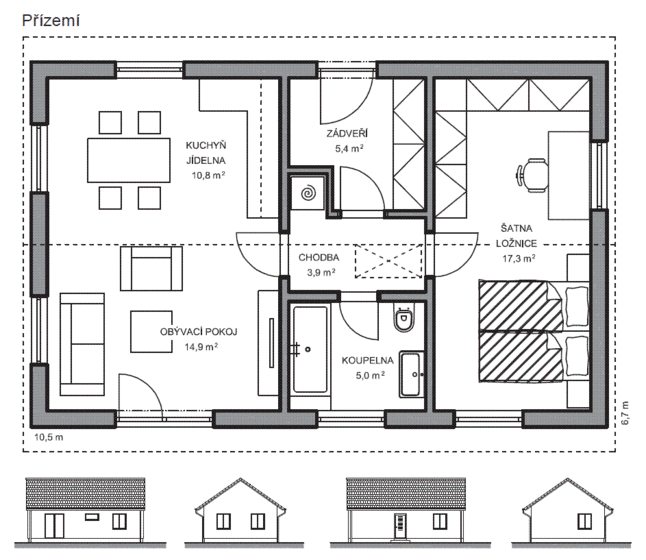
The ground-floor family house ALNUS is designed for comfortable life of two people regardless of age. The low price is achieved thanks to simple construction and size of the house. Using K-KONTROL® construction system makes the interior of the house look large despite small actual dimensions. This model has an undeniable advantage of very low operation costs. The truss frame of the saddle roof enable garret storage along the whole length of the house. The house can be built in reverse projection.
| Disposition | 2+kk | |
| Built-up area | 69 | m2 |
| Useful Area | 57 | m2 |
| Ridge height | 5,9 | m |
| Roof slope | 35 | ° |
| Orientation | V, S, Z | |
Download
Ke stažení
-
prospekt - Alnus
[343,07 kB]





