Chata u Labe
Vážení přátelé: sledujte tuto krásnou stavbu s námi na pokračování!
"Chata k celoročnímu užívání pro rodinu, přátele a rybaření na břehu řeky Labe"
další stavba z K-KONTROL® stavební systém s využitím nosníků I-OSBTM!
Vážení přátelé: sledujte tuto krásnou stavbu
s námi na pokračování!
"Chata k celoročnímu užívání pro rodinu, přátele a rybaření na břehu řeky Labe"
další stavba z K-KONTROL® stavební systém s využitím nosníků I-OSB™!
Specifikace a dispozice:
Zastavěná plocha: 6.0 m x 12.5 m = 75 m2
- 1.N.P. užitná plocha = 5.66 m x 11.92 m = 67 m2
- podkroví = 5.66 m x 8.10 m = 45 m2
- K tomu zastřešené parkování nebo zastřešená terasa: 3.85 m x 6.0 m = 23.10 m2
Výška chaty od základové desky po vrchol hřebenu: 4.60 m
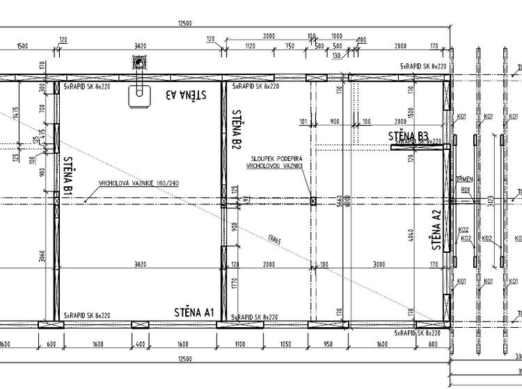
Takto začíná u výrobce CZECH PAN: výrobní dokumentace a cenová nabídka:


Stavebník si navrhnul praktickou, pohodlnou a nenáročnou stavbu. Na připravenou základovou desku byla postavena firmou CZECH PAN hrubá stavba z K-KONTROL panelů. Z těchto panelů jsou zhotoveny obvodové nosné stěny, nosné ztužující příčky a celá střecha. Řešení střešního pláště tímto nabízí jednoduchou a úspornou konstrukci k vytvoření otevření prostoru kuchyně a obýváku "až do střechy" a v severní a jižní části domu využití plného podkroví k využití dvou ložnic pro děti nebo hosty, či úložných prostor.
A zde foto z realizace:
Prosím shlédněte první fota. Investor buduje konečnou stavbu svépomocí. Již se těší na rybolovnou sezónu...



